碳索未来,节能为先!以下是智诚阀门为朋友整理的不锈钢传力接头产品的相关资料信息,由于篇幅有限,朋友不太清楚的地方请即刻致电智诚不锈钢传力接头产品技术咨询电话:【13838323458】!
产品介绍
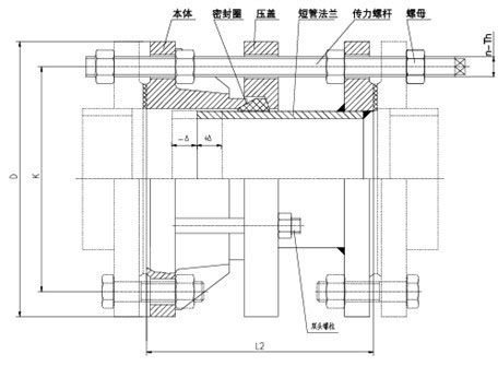
传力接头又叫、伸缩节、补偿器、伸缩器、伸缩接头。可分为C2F型双法兰传力接头、CF型单法兰传力接头、CC2F型可拆式传力接头。由本体,密封圈,压盖,伸缩短管等主要部分组成。是泵、阀门等设备与管道连接的新产品,通过全螺栓把它们连接起来,使其成为一个整体,并有一定的位移量,这样就可以在安装维修时,根据现场安装尺寸进行调整,在工作时,可以把轴向推力传还至整个管道。这样不仅提高工作效率,而且对泵、阀门等设备起到一定保护作用。
产品优势
传力接头是泵、阀门,管道等设备与管道连接的新产品,通过全螺栓把它们连接起来,使其成为整体,并有一定的位移量,方便安装。可承受管线的轴向压力。这样就可以在安装维修时,根据现场安装尺寸进行调整,在工作时,不仅提高工作效率,而且对泵、阀们等管道设备起到一定保护作用。在管道中发挥着连接作用的就是传力接头是中国的净水排污行业中不可缺少的设备,在整个排污的环节中发挥着不可缺少的作用。正因为如此,传力接头在净水行业中以飞快的速度往前发展。中国不仅是一个农业大国,也是一个机械大国,每个城镇都建立着各种工厂,工厂排放出来的污水要进行合理的排泄,而不能对村庄和人民造成污染危害。
传力接头的适用介质在整个管道系统中的用途,这个产品在整个管道系统是起的一个连接作用的,管道系统是用来传输物质,主要适用于以下等等物质,煤气、空气、原油、燃油、生活污水、润滑油、淡水、输送海水、冷热水、饮用水、成品油、并且这些物质的温度是不高于250度的蒸汽和颗粒粉状等介质的。因为这些物质主要是通过管道进行传输,管道传输过程中,这些物质肯定会经过传力接头或者伸缩接头这个连接处,那么连接处直接就关系到整个管道系统是否是一个良性的传输过程,这个用途是非常重要而且直观的,其中微妙之处就在于连接,一个传承,一个传力,这就是伸缩接头的用途。
产品特点
1.安装简单方便、方便阀门安装、可承受管线的轴向拉力。
2.该产品采用金属铸造或焊接组成,松套部位选用梯形橡胶密封圈,在压盖和螺栓的作用下。
3.利用橡胶压缩弹性变形原理。迫使密封圈变形于接头本体伸缩管外壁之间进行静密封。
4.金属和密封圈严格按使用性能及用户要求选用。材质外部涂装高强度防腐漆料,各部连接螺栓为高强度碳钢或不锈钢制作。因为本体与伸缩管之间有一定间隙,使它具有一定的轴向和径向位移。
5.在管道中能有效的补偿和缓解管道和盲板推力,又能便于水泵,阀门的安装维修更换,实为管道安装运行业中为理想的配套产品。
产品示意图
零部件材料
序号No. | 名称Name | 数量Quantity | 材料Material |
1 | 本体Body | 1 | QT400-15,Q235A,ZG230-450,20 |
2 |
密封圈Gasket |
1 | NBR |
3 | 压盖Follower | 1 | QT400-15,Q235A,ZG230-450,20 |
4 | 短管法兰Limited short pipe | 1 | Q234A,20,16Mn |
5 | 螺柱bolt | n | q235A,35,1Cr8Ni9Ti |
6 | 螺母Nut | 5n | Q235A,20,1Cr8Ni9Ti |
技术参数
公称通径Nominal Diameter DN | 管子外径External diameter of pipe Dw | 外形尺寸 | 法兰连接尺寸Flange connecting dimension | ||||||||
0.6Mpa | 1.0Mpa | ||||||||||
L | △L | D | D1 | n-Th | b | D | D1 | n-Th | b | ||
65 | 76 | 200 | 40 | 160 | 130 | 4-M12 | 16 | 185 | 145 | 4-M16 | 20 |
80 | 89 | 190 | 150 | 4-M16 | 18 | 200 | 160 | 8-M16 | 22 | ||
100 | 114 | 210 | 170 | 220 | 180 | 24 | |||||
125 | 140 | 240 | 200 | 8-M16 | 20 | 250 | 210 | 26 | |||
150 | 168 | 265 | 225 | 285 | 240 | 8-M20 | |||||
200 | 219 | 320 | 280 | 22 | 340 | 295 | 28 | ||||
250 | 273 | 375 | 335 | 12-M16 | 24 | 395 | 350 | 12-M20 | |||
300 | 325 | 220 | 50 | 440 | 395 | 12-M20 | 24 | 445 | 400 | ||
350 | 377 | 490 | 445 | 26 | 505 | 460 | 16-M20 | 30 | |||
400 | 426 | 540 | 495 | 12-M20 | 28 | 565 | 515 | 16-M24 | 32 | ||
450 | 480 | 595 | 550 | 28 | 615 | 565 | 20-M24 | 32 | |||
500 | 530 | 645 | 600 | 20-M20 | 30 | 670 | 620 | 20-M24 | 34 | ||
600 | 630 | 240 | 755 | 705 | 20-M24 | 30 | 780 | 725 | 24-M27 | 36 | |
700 | 720 | 860 | 810 | 24-M24 | 32 | 895 | 840 | 24-M30 | 40 | ||
800 | 820 | 350 | 60 | 975 | 920 | 24-M27 | 34 | 1015 | 950 | 28-M30 | 44 |
900 | 920 | 1075 | 1020 | 24-M27 | 36 | 1115 | 1050 | 28-M33 | 46 | ||
1000 | 1020 | 1175 | 1120 | 28-M27 | 36 | 1230 | 1160 | 32-M36 | 50 | ||
1200 | 1220 | 370 | 1405 | 1340 | 32-M30 | 40 | 1455 | 1380 | 36-M39 | 56 | |
1400 | 1420 | 1630 | 1560 | 36-M33 | 44 | 1675 | 1590 | 40-M45 | 62 | ||
1600 | 1620 | 380 | 1830 | 1760 | 40-M33 | 48 | 1915 | 1820 | 44-M45 | 68 | |
1800 | 1820 | 2045 | 1970 | 44-M36 | 50 | 2115 | 2020 | 48-M45 | 70 | ||
2000 | 2020 | 400 | 2265 | 2180 | 48-M39 | 54 | 2325 | 2230 | 52-M52 | 74 | |
2200 | 2220 | 2475 | 2390 | 52-M39 | 60 | 2550 | 2440 | 56-M52 | 80 | ||
2400 | 2420 | 2685 | 2600 | 56-M39 | 62 | 2760 | 2650 | 60-M52 | 82 | ||
2600 | 2620 | 450 | 80 | 2905 | 2810 | 60-M45 | 64 | 2960 | 2850 | 64-M52 | 88 |
2800 | 2820 | 3115 | 3020 | 64-M45 | 68 | 3180 | 3070 | 68-M56 | 94 | ||
3000 | 3020 | 3315 | 3220 | 68-M45 | 70 | 3405 | 3290 | 68-M56 | 100 | ||
3200 | 3220 | 3525 | 3433 | 72-M45 | 76 |
双法兰传力接头:由本体、密封圈、压盖、伸缩短管等主要部件组成。该产品适用于两边均与法兰连接的管道中,安装时调整产品两端与法兰的安装长度,对角依次均匀拧紧压盖螺旋,使其中成为一个整体,并有一定的调节量,方便安装维修时,根据现场尺寸进行调整。在工作时可以反轴向推力传递至整个管道。
Double Flanges Transmission Joint: Mainly composed of body, sealing-washer,gland,short slides,this product is applicable to pipes which connected with Flang on both sides,modulate the product'slength between Flange while installing, Screw down bolts after installation to integrate the structure and guarantee a certain shift which will facilitate the adjustment of size while installation. It can turn the axial thrust on the whole pipe.
产品服务
专业制造、专业服务,智诚为你创造更多价值 !
不断提升服务质量,精益求精,“真诚的服务”是智诚永恒的主题。智诚严格按照 ISO9001-2000 质量体系认证要求,质量严格把关,责任到人,确保生产、销售、服务的健康运行。加强与用户沟通,竭诚为广大客户提供优良产品,至善至美服务。
产品标准
产品严格按照中国 GB、HG 标准和美国 API 等标准设计、制造、验收。密封面硬度达到国家规定要求,宽度超过国家标准。
售前服务
产品介绍,技术交流,非标产品设计,疑难解答。
售中服务
1、守信合同,保证及时供货,随时保持与客户联系
2、对特殊或复杂的产品,我厂安排技术人员对用户进行产品使用、故障排除、调式及维修进行培训和指导。
售后服务
1、智诚产品质保期为自出厂起 12 个月,实行“三包”服务(包退、包换、包修)。
2、产品在使用中我厂定期组织技术、检查人员进行访问,征询用户对产品质量、使用状况、改进意见等方面的反馈,以便进一步提高产品质量。
3、对用户投诉产品质量问题,快速做出反映,售后服务人员在 24-36 小时(省外 48 小时)赶赴现场。
4、对售后服务,要求用户填写服务后的质量反馈表,并做出鉴定意见,共同提高智诚的产品质量与服务质量。
订货须知
1、客户对产品有特殊要求,须在订货合同中提供以下说明:
(1)结构长度
(2)连接形式
(3)公称直径、全通径、缩径、管道尺寸
(4)用介质及温度、压力范围
(5)实验、检验标准及其他要求本厂可根据客户特殊要求配置定做和设计特殊产品。
2、本厂可根据客户特殊要求配置定做和设计特殊产品。
3、如由客户提供确定的产品类型和型号时,客户应正确说明其型号的含义和要求,在供需双方理解一致的条件下签订合同。
以上智诚阀门技术工程人员为朋友整理的不锈钢传力接头产品的相关资料信息,由于篇幅有限,朋友不太清楚的地方请即刻致电智诚不锈钢传力接头产品技术咨询电话,智诚人愿为您提供新的不锈钢传力接头信息,帮助朋友做出正确的选择!技强,则业强